Appartamento in vendita a Cervia in Viale Romagna, 45
€480.000
--- €
rata mutuo
4
locali
2
bagni
110 m2
superficie
Descrizione Immobile
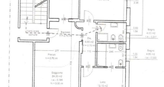
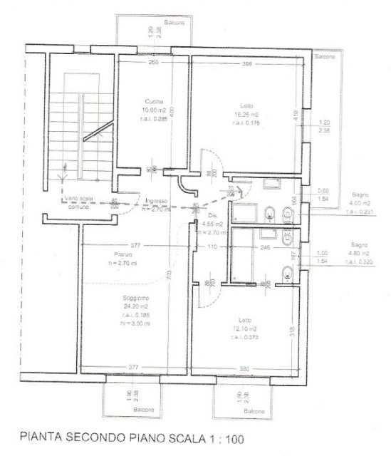
MILANO MARITTIMA - APPARTAMENTO RISTRUTTURATO CON GARAGE E POSTO AUTO. In zona centralissima, a due passi dalla rotonda Primo Maggio, si propone in vendita ampio appartamento sito al 2 piano senza ascensore in condominio appena ristrutturato esternamente, di sole 4 unità, composto da: ingresso, ampio e luminoso soggiorno con balcone, cucina abitabile con balcone, due ampie camere matrimoniali conDati Immobile
Riferimento e data annuncio
VE 312 - 24/03/2025
Contratto
Vendita
Tipologia
Appartamento
Superficie
110 m2
Locali
4
Bagni
2
Posto auto
No, 12 m2
Piano
2 (di 3)
Caratteristiche
Cantina
Ascensore
Costi
Prezzo
480.000 €
Rata mutuo
Efficienza Energetica
Anno di costruzione
1977
Condizioni
Nuovo
Riscaldamento
Autonomo
Indirizzo e Mappa
Viale Romagna, 45 - Cervia (RA)

