Villa in vendita a Lugo in Via Antonio Gramsci, 87
€395.000
--- €
rata mutuo
9
locali
4
bagni
300 m2
superficie
Descrizione Immobile
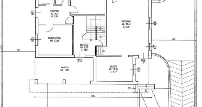
LUGO - VILLA 300 MQ CON GIARDINO E GARAGE. In zona residenziale e silenziosa, a pochi passi dal centro, si propone in vendita villa di circa 300 mq con ampio giardino, composta al piano terra da sei locali e due bagni, al piano primo troviamo altri cinque locali e due bagni, oltre ad un grande balcone. Al momento l'immobile è frazionato in 3 appartamenti, al piano terra un bilocale e un trilocale,Dati Immobile
Riferimento e data annuncio
VE 105 - 24/03/2025
Contratto
Vendita
Tipologia
Villa
Superficie
300 m2
Locali
9
Bagni
4
Posto auto
No, 60 m2
Piano
3 (di 2)
Giardino
Sì, 340 m2
Caratteristiche
Terrazzo
Cantina
Ascensore
Costi
Prezzo
395.000 €
Rata mutuo
Efficienza Energetica
Anno di costruzione
1980
Condizioni
Buone
Riscaldamento
Autonomo
Indirizzo e Mappa
Via Antonio Gramsci, 87 - Lugo (RA)































