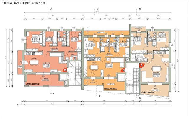
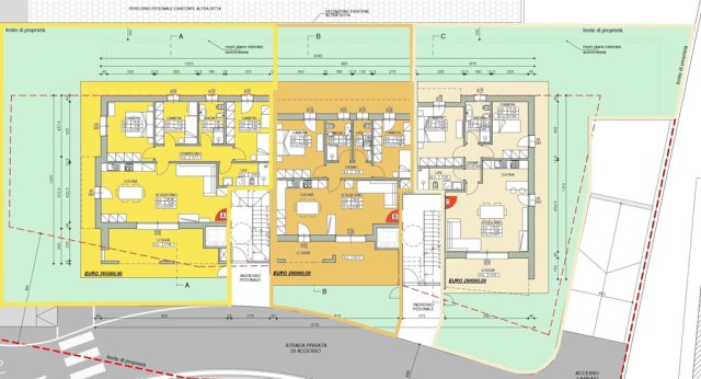
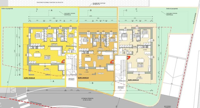
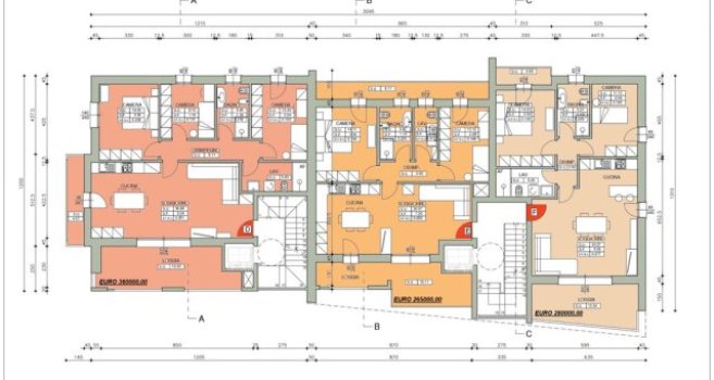
Appartamento in vendita a Asolo in Via Jacopo Da Ponte, 58
€265.000
--- €
rata mutuo
12
locali
2
bagni
110 m2
superficie
Descrizione Immobile
NUOVA COSTRUZIONE RESIDENZIALE CASELLA D'ASOLO (TV).Dati Immobile
Riferimento e data annuncio
A/10 - 20/03/2026
Contratto
Vendita
Tipologia
Appartamento
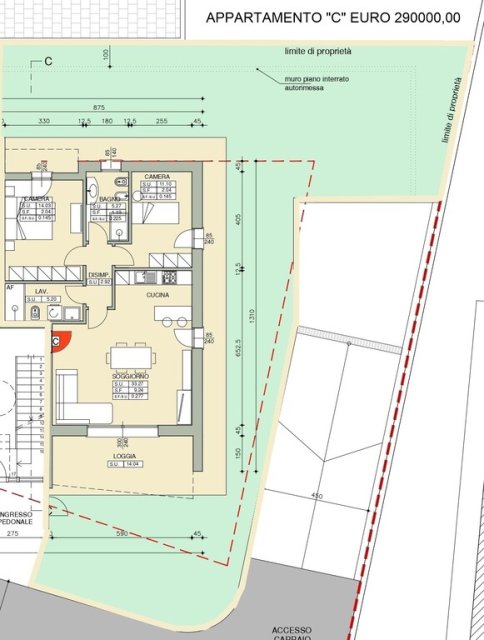
Superficie
110 m2
Locali
12
Bagni
2
Posto auto
No
Piano
1 (di 3)
Caratteristiche
Cantina
Ascensore
Costi
Prezzo
265.000 €
Rata mutuo
Efficienza Energetica
Anno di costruzione
2026
Condizioni
Nuovo
Riscaldamento
Autonomo
Classe energetica
A+
Indirizzo e Mappa
Via Jacopo Da Ponte, 58 - Asolo (TV)






























