Appartamento in vendita a Cervia in Via Monte Nevoso, 1
€320.000
--- €
rata mutuo
4
locali
2
bagni
92 m2
superficie
Descrizione Immobile
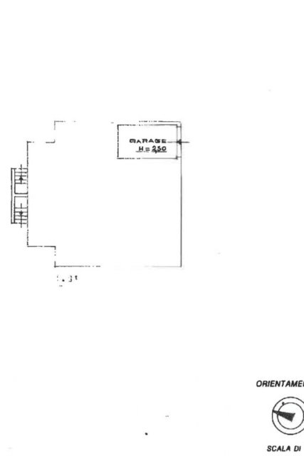
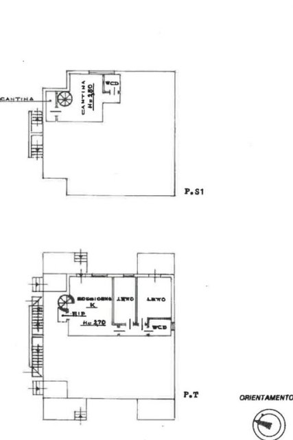
CERVIA - APPARTAMENTO CON GIARDINO, GARAGE E AMPIA CANTINA. In zona residenziale e tranquilla, comoda tutti i servizi, si vende appartamento al piano rialzato composto da ingresso su luminoso soggiorno con angolo cottura e accesso al terrazzo, due camere di cui una matrimoniale con terrazzo, camera singola, bagno e piccolo ripostiglio. Completa la proprietà un giardino privato, un'ampia taverna utilizzabile come studio, una cantina, un secondo bagno e un garage. L'immobile è dotato di riscaldamento autonomo, persiane e inferriate. Prezzo richiesto: € 350.000 - PER INFO: EMAIL: info@agenziazoffoli.it, TEL. 0544-995261, viale Matteotti 90, Milano MarittimaDati Immobile
Riferimento e data annuncio
VE 357 - 20/03/2026
Contratto
Vendita
Tipologia
Appartamento
Superficie
92 m2
Locali
4
Bagni
2
Posto auto
No
Caratteristiche
Cantina
Ascensore
Costi
Prezzo
320.000 €
Rata mutuo
Efficienza Energetica
Anno di costruzione
2000
Condizioni
Buone
Riscaldamento
Autonomo
Indirizzo e Mappa
Via Monte Nevoso, 1 - Cervia (RA)










