Appartamento in vendita a Castelcucco
€248.000
--- €
rata mutuo
6
locali
1
bagno
110 m2
superficie
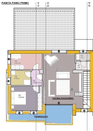
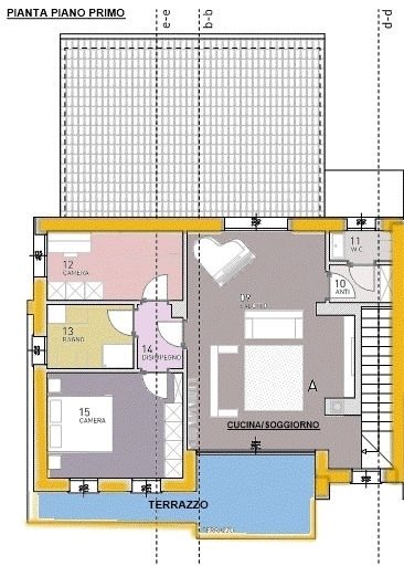
Descrizione Immobile
Rif. 04/A - APPARTAMENTO indipendente di nuova costruzione Castelcucco (TV).Dati Immobile
Riferimento e data annuncio
A/4 - 08/02/2026
Contratto
Vendita
Tipologia
Appartamento
Superficie
110 m2
Locali
6
Bagni
1
Posto auto
No
Piano
1 (di 1)
Caratteristiche
Cantina
Ascensore
Costi
Prezzo
248.000 €
Rata mutuo
Efficienza Energetica
Anno di costruzione
2025
Condizioni
Buone
Riscaldamento
Autonomo
Classe energetica
A+
Indirizzo e Mappa
- Castelcucco (TV)











